獨攬設計,把建築空間拉出象牙塔:專訪 無界象國際設計 張顥瀚總監
- 加入收藏
本文由 Biby 撰寫
經常在各大演講活動與電視節目中看見 無界象國際設計 張顥瀚總監 的身影,這次更以其作品圓石雲山匯登上夢想誌之人物雲集。訪談一開始他便笑著說:「我們的設計就是以最貼近你我的生活為出發點,做到讓每個業主能以最自在的方式,生活這在一個完全貼近自己的專屬空間。」就如同過去誠品所舉辦的「老屋翻修」講座,設計師們總是爭相展現自己引以為傲的作品,但他卻反其道而行,以「實際操作模式」走入台下與觀眾互動,告訴大家老屋翻修要注意什麼、水電該怎麼裝修、白蟻怎麼處理預防、拆除又要注意哪些細節……等等問題。以貼近業主生活的設計理念,讓每個角落都成為生活的一部分。
圖:三重建案 立面圖
把建築的力量還給業主
總監自信地笑著說:「如果可以一次就做到一百分,何必浪費彼此的時間?」那麼,何謂一百分?建築與設計其實就是解決問題,老屋翻新目前成長至設計市場比率的高點,因此探究房屋本身的問題便顯得更為重要。「當消費者購買了一幢房子,往往因機能需要,可能需要拆除牆面、改機電位置等,但透過室內設計的角度與建商相互配合,從一開始就先將格局規劃完整,便可減少業主未來隔間更改的費用支出以及原物料的浪費。」正如同 張逸鈞 對建築空間規劃下的註解,規劃就是將行為概念及生活尺度作完美結合,從根本上的建築空間規劃,建立建築、室內設計與業主之間的溝通橋樑,當三方形成穩固良好的黃金三角,未來所面臨的問題便提早迎刃而解,將建築的力量還給業主。
圖:圓石雲山匯 立面定稿圖
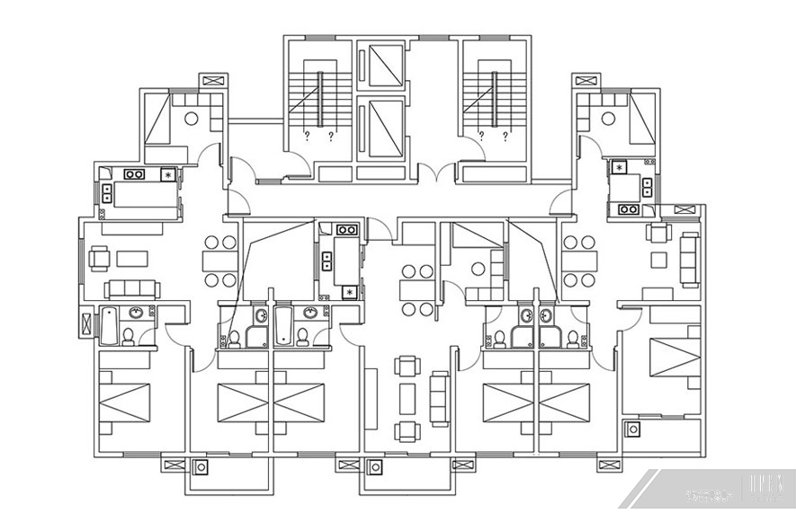
圖:圓石雲山匯B棟平面定稿圖(標準層)
“新新古典”進化論
從設計源頭之整體規劃,到室內陳設設計 張逸鈞總監 的衷旨是賦予空間生命力,藉由不同的設計手法來表現,讓空間自己訴說它的風情。以打造人性空間為衷旨,繼承中世紀的古典精神,讓室內每個角落都成為了歐洲古典風格的延伸,進化昇華其設計手法,鑄造出『新新古典』。新新古典不僅解決了潮濕氣候的問題以及維修保養的不容易,也創造出空間的天生氣度。運用夾板堆疊出層次意象,勾勒45度線條,以木皮噴白取代了烤漆,賦予空間生命,新新古典進化論,創造設計新時代。
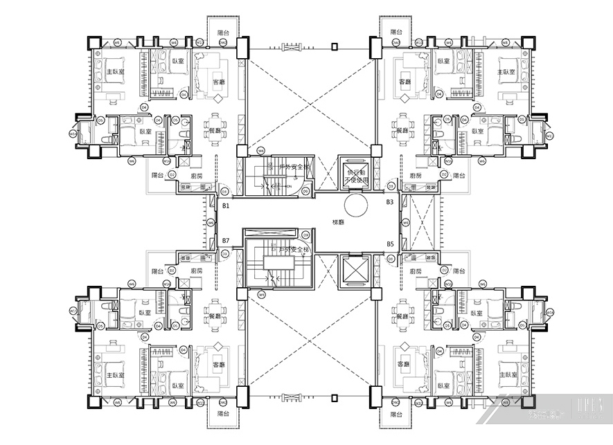
圖:圓石雲山匯原始配置圖
圖:圓石雲山匯平面手稿
圖:金門建案立面設計定稿圖
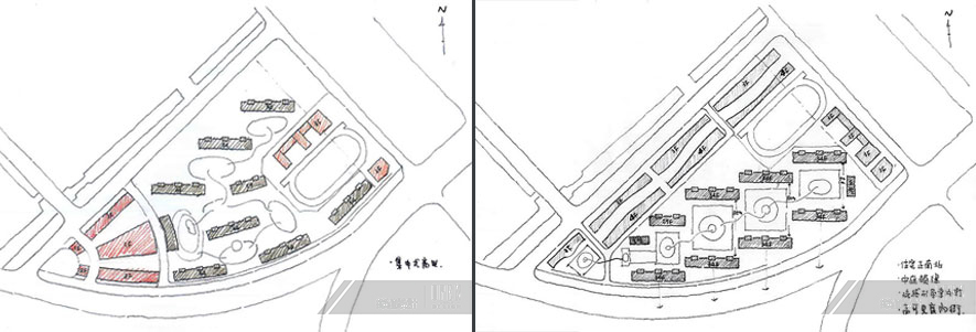
圖:無錫全區配置手繪
圖:無錫原始配置圖
圖:無錫手繪修正配置圖
用設計顛覆建築空間
「如果你不重視空間,你就像買了一個很漂亮卻不實用東西。」張逸鈞 總是可以將空間概念,以最完美務實的方式,建立顧客對他的高信任度。從事建築事業八年的經歷,讓他得已以「空間規劃」傲首建築與室內設計領域。過去不斷積累的經驗,都是創立鎵酲設計的基石,如今,張逸鈞 集結建築規劃、市場銷售、營造工法與成本,以及室內設計完整結合,以經濟成本與未來效益的概念,透過營造廠的工法及建築相關法令,搭建起建築師與建商的溝通橋樑,為業主創造全新的房屋規劃局面。從根本上顛覆空間,以建築的內在,用室內設計的角度去調和、重新定義設計與建築之間的關係。溝通讓一切效率增加,規劃時間、建築時間、銷售時間、以及成屋時間都得以縮短。從建築的源頭做協調規劃,跳脫設計象牙塔,寰融整體規劃。
圖:湖南衛視公益室裝節目 設計構想手稿
寰宇集匯,打造生命歸屬
張逸鈞 憑藉著自己過往的歷練,從仕豐建設淡海新市鎮“大河文明”集合住宅建築開發案,到如今圓石建設“雲山匯”集合住宅建築開發案,鎵酲設計 歷行長達十年的轉型,彙集建築規劃、室內裝潢、市場銷售、營造工法與成本統籌,一手打造企業化的鏈鎖。站在建築與室內設計產業的制高點,以最原始的建築狀態與空間進行獨立對談,沒有風格的自我設限,細心聆聽、體貼思量、不厭其煩的溝通,激盪出空間的美好。張顥瀚 寰宇集匯,獨攬設計鏈鎖,將建築空間拉出象牙塔,創建賓至如歸的生命歸屬,為房屋產業與業主預約人生下半場幸福。
圖:圓石雲山匯公設3D圖
圖:圓石雲山匯公設3D圖
天生的氣度,圓石雲山匯
圓石雲山匯,從接待中心大廳起始與其實品大廳風格連成一線, 注入天然原石之大氣與沈著,體現了總監大氣鼎然風度,串聯起整體設計營運之理念。天地之間相互呼應,將視覺引導向上,創新燈景如同國際設計的瞻望與美好遠景。鎵酲設計特別精心構思「洽談區」,三面全牆式的落地窗,通透之間彷彿一雙溫暖而有力的手,拉近了設計與賓客的距離,恰如其分的表達出貼近人心與生活的宗旨。張逸鈞 說:「一個好的案子最重要的是空間規劃,如果你要規劃一房、兩房、三房,這每個設計師都能做到,但是要做到大坪數以及多房規劃,就不一定每個人能做。」而他就是這樣的自信,把持著對設計的堅定意志與熱情,運用自身經歷,記錄著建築的歷史,撰寫空間的生命。
作品介紹
作品《蘇式情懷-新新古典》
作品《穿透-新新古典》
作品《沐光-現代》
































動能開啟傳媒有限公司版權所有 COPYRIGHT © OPEN WORLD DESIGN ASSOCIATION RESERVED. 


